States we ship to: Oregon, Washington, California, Alaska, Hawaii, Idaho, Nevada, Utah and Montana.

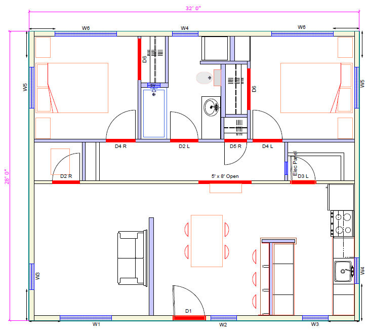
896SF TWO BEDROOM ADU KITS

Starting from $28,000

WHAT WE OFFER

PACWALL MINI is a flat-stacked kit of pre-assembled wood components. These living units have been called a tiny home, she-shed, guest house, apartment, or granny flat and are designed to be easy to assemble and meet or exceed code requirements. They come complete with a construction set of documents, ready for your plot map. At present, we are offering a 364 SF studio, a 660 SF one bedroom, and a 896 SF two bedroom. All units have the option for a garage below, or stack one unit on top of the other to create a two-story unit.

Whether you are looking to accommodate extended family or adding one or more ADU’s as rental units to your property to generate income, PACWALL MINI can provide a solution to your housing and financial needs.

Contact us today by clicking on the button below and we will reply as soon as we can.

Contact Us For Permit-Ready Plans

Two Bedroom ADU Plans